专注空气能热水器定制、承接空气能工程,全国统一服务热线:13706164559

联系我们

Contact Us
億彩
地址:新北区龙虎塘新区产业园区
电话:13706164559
手机:13706164559(微信同号)
QQ:2242597105
当前位置: 首页 / 新闻资讯 / 公司新闻

公司新闻

苏州太仓国际车联网大数据产业园[平板太阳能+多水箱承压系统相结合]项目顺利交付
更新时间:2021-07-18 点击:840

太仓国际车联网大数据产业园项目总投资2.5亿美元,由世纪互联、启迪设计集团股份有限公司联合投资,致力于车联网、云计算、智能制造、区块链等相关领域运用。据悉,产业园达产后年销售不低于8亿元。项目方还将在璜泾镇设立1500万元的产业基金,用于支持落户于璜泾镇的科创项目发展,特别是车联网、云计算、大数据、智能制造、区块链等相关产业项目。

江苏欧麦朗能源科技有限公司很荣幸承接了该园区的生活热水项目,欧麦朗工程人员为其设计了平板太阳能+多水箱空气能承压相结合的系统,下面小编简单介绍一下该系统的优势:




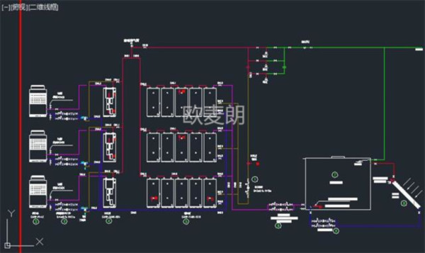
太阳能+模块承压闭式小水箱运行原理图


1、太阳能采用独立运行,集热水箱充分吸收太阳能的热量,加大太阳能的能效。

2、供水时,所有用水均来自集热水箱,不管是冬季还是夏季,集热水箱水温相对比冷水温度更高,从而让空气能运行加热的时间更短,也加大了空气能的能效。

3、太阳能与空气能的完美组合,让后期的运行费用降到最低。加速了太阳能空气能的投资回报比。

4、开式水箱与闭式小水箱,让太阳能和空气能都能将能效发挥到最大。

5、一大一小的组合,也让屋面承重得到了最大的利用。

6、闭式小水箱的运用,承压出水、不会忽冷忽热、系统稳定、安全、节能。









近日,欧麦朗顺利交付了苏州太仓国际车联网大数据产业园平板太阳能+多水箱承压系统相结合热水系统,该系统再验收时得到了园区领导的一致好评。欧麦朗会再接再厉,为更多的企业单位送去舒适节能环保的热水系统。

做/您/身/边/的/空/气/能/热/水/器/专/家
  • 微信公众号
  • 小程序
版权所有:億彩 地址:新北区龙虎塘新区产业园区 手机:13706164559 电话:13706164559 邮箱:oumailang@inposolar.com
备案号:  法律声明
E乐彩-首页 500505百万文字论坛综合资料-500308百万文字论坛-780790百万文字论坛红字-798790百万文字论坛下载-500505百万文字论坛雷锋版 天天中彩票-Welcome首页 乐盈VI 佰富彩-安全购彩 98彩票|官方网站 佰富彩-welcome 佰富彩 - IOS/安卓通用版