相关资讯
Related News- COP 达 3-5、节能超 60%!热泵技术为金属件清洗工艺降本增效提供关键路径
- 空气能热泵在汽车配件清洗恒温热水供应中的核心价值
- 节能黑科技:高温水源热泵如何重塑饮料无菌灌装生产线的能源效率
- 欧麦朗高温复叠热泵助力某电子股份有限公司PCB工艺热水
- 超声波清洗 + 空气能热泵恒温:双技术协同,让清洗效果稳、能耗省、寿命长
- 欧麦朗三期热泵烘干机项目将完工:赋能某资深工业品牌泰国工厂发泡模具生产
- 注塑车间高温不用愁?欧麦朗蒸发冷空调精准控温还省电
- 夏季养殖场鱼池高温 “烤” 验?空气能恒温热泵解锁全年温控新方案
- 高温热泵:点 “废” 成金的工业能源革命
- 某食品厂屠宰用空气能太阳能热水系统交付 绿色生产再添新动能
- 空气源热泵冷热双供系统在电镀车间的节能改造应用
- 光伏厂节能:热泵回收 PCW 回水余热 赋能制绒车间
联系我们
Contact Us
億彩
地址:新北区龙虎塘新区产业园区
电话:13706164559
手机:13706164559(微信同号)
QQ:2242597105
地址:新北区龙虎塘新区产业园区
电话:13706164559
手机:13706164559(微信同号)
QQ:2242597105
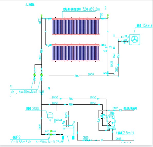
欧麦朗超导集热器+燃气锅炉承压系统,助力员工宿舍用热水
更新时间:2021-11-02 点击:738
系统运行原理图:(超导集热器+容积式换热器+燃气锅炉辅助系统)

产品特点:
1、制造工艺精良:该产品的生产工艺近六十道工序,而且采用了世界上的磁脉冲自动环形热压封接工艺,氩弧焊、激光焊、全自动焊接等仪器。
2、检测技术:在新产品出厂前须进行逐支检测,检测线引进美国技术,测试产品的导热情况,以此保证产品的质量。
3、热效率高:运行温度可达100℃。闷晒温度可达250℃,工作温度为70℃--120℃,使之成为太阳能利用的理想产品。
4、热启动快:在阳光下2分钟即可输出热量。
5、特殊的防冻技术:即使在-50℃的严寒下仍能正常工作而无冻损之忧。
6、高真空度:内置长效吸气剂使真空管长期维持10-2Pa以下的真空度,有利于高效吸收太阳能并保持热量不损失。
7、不结垢:采用热管导热,管内不进水,解决了因结垢而影响热效率的问题。
8、承压能力大:金属热管式真空太阳集热管能承受自来水或循环水泵的压力,还可以产生0.6 Mpa的热水甚至高压蒸气。
9、超导热管集热器走防冻液同容积式换热器循环,特别适用于高寒低区,使用寿命可长达20年 。



下一条信息:【工业热水】杭州科百特高温乙醇罐加热恒温系统


小程序